da Redação DiárioZonaNorte
Em seu aniversário de 108 anos, a Vila Guilherme ganhou um presente inesperado: melhorias no Parque Vila Guilherme/Trote.
Na tarde da 6a. feira (11set2020), uma placa foi afixada nas grades da entrada principal do parque, na Praça dos Trotadores s/n, anunciando as “Obras de Readequação Geral e Serviços Complementares para o Parque Vila Guilherme/Trote”.

Valor da Obra
Na placa, que é obrigatória por lei em toda obra realizada por órgãos públicos, está a informação de que a Prefeitura de São Paulo investirá exatos R$ 1.164.792,49 (um milhão, cento e sessenta e quatro mil, setecentos e noventa e dois reais e quarenta e nove centavos) – com prazo de entrega em 120 dias, a contar da data de 24 de agosto de 2020 e que a obra será realizada pela APENG Serviços e Construções Ltda.
Prazo correndo e eleições
Frequentadores e vizinhos ao parque, relataram que apesar da placa informar o início da obra em 24 de agosto e ter um prazo de conclusão em 120 dias, até agora não viram nenhuma movimentação ou de trabalhadores ou máquinas, que indicasse uma reforma no local. Subentende-se que, em breve, o prefeito/candidato deva visitar o local.

Dois parques em um
Apesar de ser tratado pela população como um só parque, conhecido como Parque da Vila Guilherme/Trote (PVGT), o local abriga dois parques distintos, totalizando uma área verde de aproximadamente 185 mil m², sendo que 120 mil m2 pertencem a área do Trote e 65 mil m² a área do Vila Guilherme.
Concessão frustrada para a iniciativa privada
Após os planos frustrados da Prefeitura de São Paulo, em ceder os 107 parques municipais para a iniciativa privada, a Secretaria Municipal do Verde e Meio Ambiente (SMVA) iniciou em setembro de 2019 o processo para as obras de readequação em diversos parques da cidade, entre eles o Parque da Vila Guilherme/Trote.
A licitação ocorreu em 22 de abril de 2020 e só agora, em setembro – contrariando o que informa a placa, a obra deverá ter início.
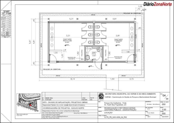
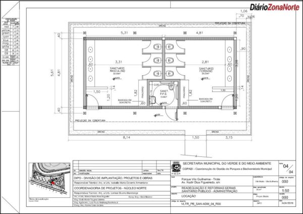
A obra
De acordo com documentação a qual o DiárioZonaNorte teve acesso em primeira mão, o contrato de número 036/SVMA/2020 contemplará alguns problemas alvo de reclamações antigas dos usuários.

Entre elas, os conjuntos de sanitários públicos nas área da administração, playground, academia para a terceira idade, quadras esportivas, implantação de ciclovia, instalação de bancos de concreto, além de um projeto e obras para iluminação da área do parque denominada Vila Guilherme.
Área tombada
Lembramos que a área do parque, denominada Trote, foi tombada em janeiro de 2014, após uma luta de mais de 13 anos encabeçada pela Associação dos Amigos do Parque da Vila Guilherme/Trote – presidida por Beto Freire – e não pode receber intervenções de qualquer natureza, sem aprovação do Conselho Municipal de Preservação do Patrimônio Histórico, Cultural e Ambiental da Cidade de São Paulo – Conpresp. – veja a integra do decreto aqui

Não estão contempladas pelas reformas as pistas externa e interna de corridas, coroa da pista, a antiga casa da administração (casarão), salão de festas, arquibancadas, edifício da “lousa” (onde os resultados das corridas eram anotados com giz), conjunto de bilheterias, torre de controle de corridas, cocheiras, pórtico de entrada principal e portaria, lago e canal unto as cocheiras, além de alguns elementos arbóreos de valor histórico.
Apenas os banheiros públicos que foram construídos depois do pedido de tombamento da área do Trote, serão reformados.
E a sustentabilidade?
Se tratando de uma obra sob a batuta da Secretaria do Verde e Meio Ambiente (SVMA) é estranho não constar a exigência de ser uma obra sustentável, não utilizando energia solar no projeto de iluminação ou captação de água de reuso para as descargas nos sanitários;
Mutirões
Durante as gestões João Doria e Bruno Covas – ambos do PSDB – , os parques municipais tiveram suas verbas de custeio reduzidas. Durante a gestão na época do então secretário do Verde e Meio Ambiente Gilberto Natalini (PV) foram realizados 105 mutirões populares em 76 parques da cidade
O mutirão do Parque da Vila Guilherme/Trote aconteceu em 15 de julho de 2017 – veja a matéria aqui.









































































