- Confira onde ficarão cada uma das 15 estações, os locais próximos à elas e suas características, cujos os imóveis podem receber desapropriações.
Além de aproximar o centro de Guarulhos ao centro da Capital paulista, a Linha 19-Celeste vai facilitar a chegada das mais de 630 mil pessoas que vão utilizá-la diariamente a pontos de interesse, como o Mercado Municipal, Theatro Municipal, comércio atacadista do Pari e outros corredores comerciais.
Com 17,6 km de extensão e 15 estações, a Linha 19 será um eixo estruturante que vai ligar áreas densamente povoadas e polos econômicos, promovendo integração com outras linhas metroferroviárias e reduzindo desigualdades territoriais, também reduzindo em 1 hora o tempo de deslocamento de Guarulhos ao centro de São Paulo.
Principais pontos conectados
- Bosque Maia (Guarulhos) – Região central de Guarulhos, próximo a áreas comerciais e terminais de ônibus.
- Jardim Julieta e Vila Maria – Corredores residenciais e industriais da Zona Norte.
- Centro de São Paulo (São Bento e Anhangabaú) – Polo financeiro, turístico e cultural.
Integrações:
- Linha 1-Azul (São Bento) – Conexão direta com a linha mais movimentada do Metrô.
- Linha 3-Vermelha (Anhangabaú) – Acesso rápido à Zona Leste e Oeste.
- Linha 2-Verde (futura integração) – Facilitará deslocamentos para a Zona Oeste e Sul.
- CPTM (Linha 11-Coral) – Integração futura para viagens metropolitanas.
Mais Integrações
- Linha 2-Verde: Estação Dutra e Brigadeiro.
• Linha 6-Laranja: Estação Bela Vista.
• Linha 20-Rosa: Estação Hélio Pelegrino.
• Linhas 5-Lilás e 17-Ouro: Estação Campo Belo.
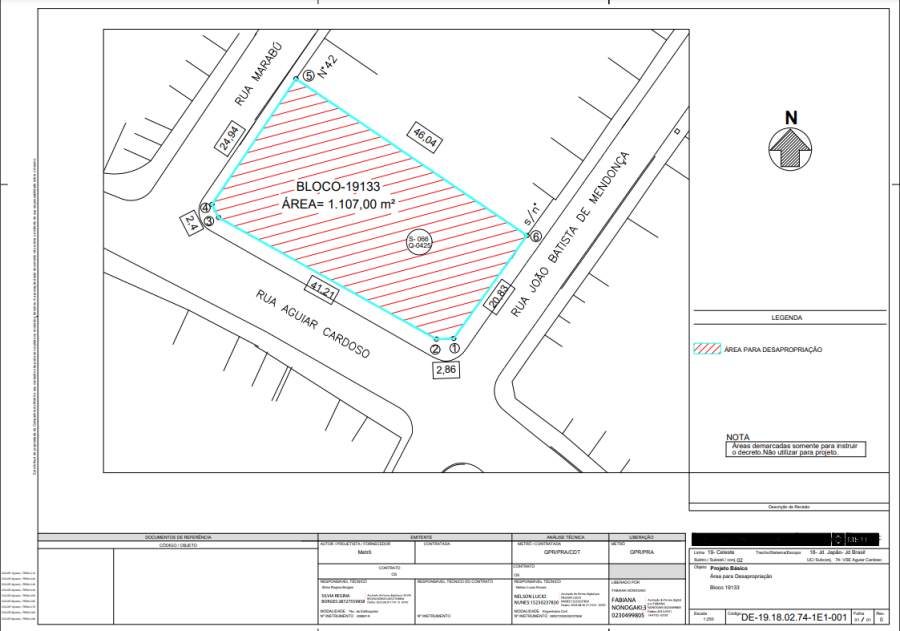
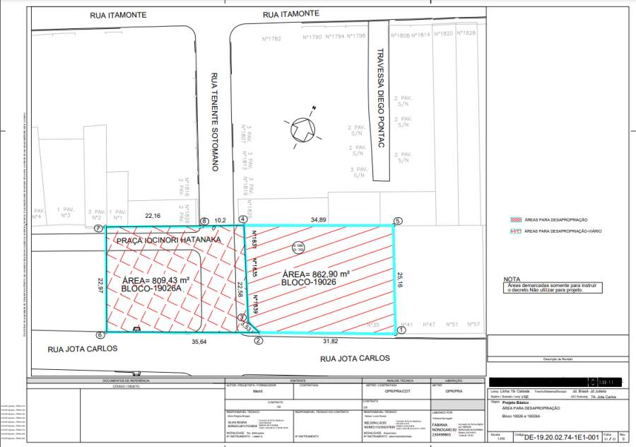
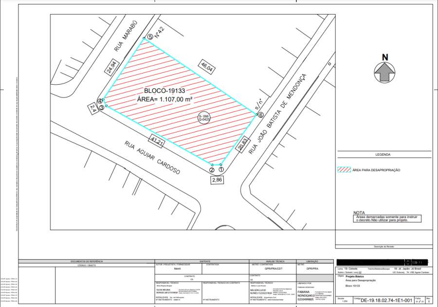
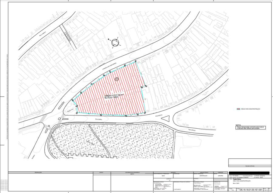
Localização das estações
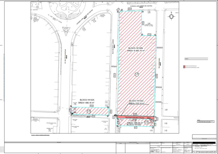
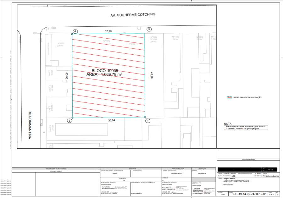
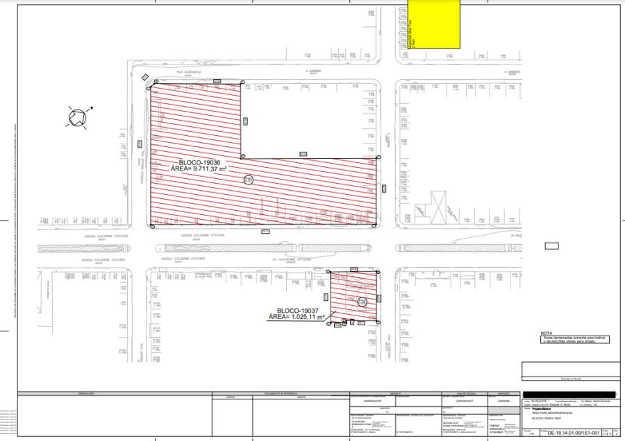
As estações terão endereços exatos após a implantação dos canteiros de obras. Mas já é possível saber sua localização aproximada, que poderão sofrer desapropriações. Veja:
- Estação Bosque Maia
Av. Tiradentes, 1451 – - Estação Guarulhos Centro
Rua Dom Pedro II, 148/154 - Estação Vila Augusta
Av. Guarulhos, 604 – - Estação Dutra
Rua Segundo Tenente Aviador John Richardson Cordeiro e Silva, 220 (Estacionamento auxiliar Internacional Shopping Guarulhos) - Estação Itapegica
Rua Cavadas, 247, 1624 - Estação Jardim Julieta
Av do Poeta, 929 – Lote 7 – Qd Q - Estação Vila Sabrina (antiga Jardim Brasil)
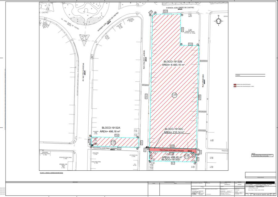
Av. João Simão de Castro, 250 – - Estação Cerejeiras (antiga Jardim Japão)
Av. das Cerejeiras, 1950 - Estação Santo Eduardo (antiga Curuçá)
Praça Santo Eduardo, 57 - Estação Vila Maria
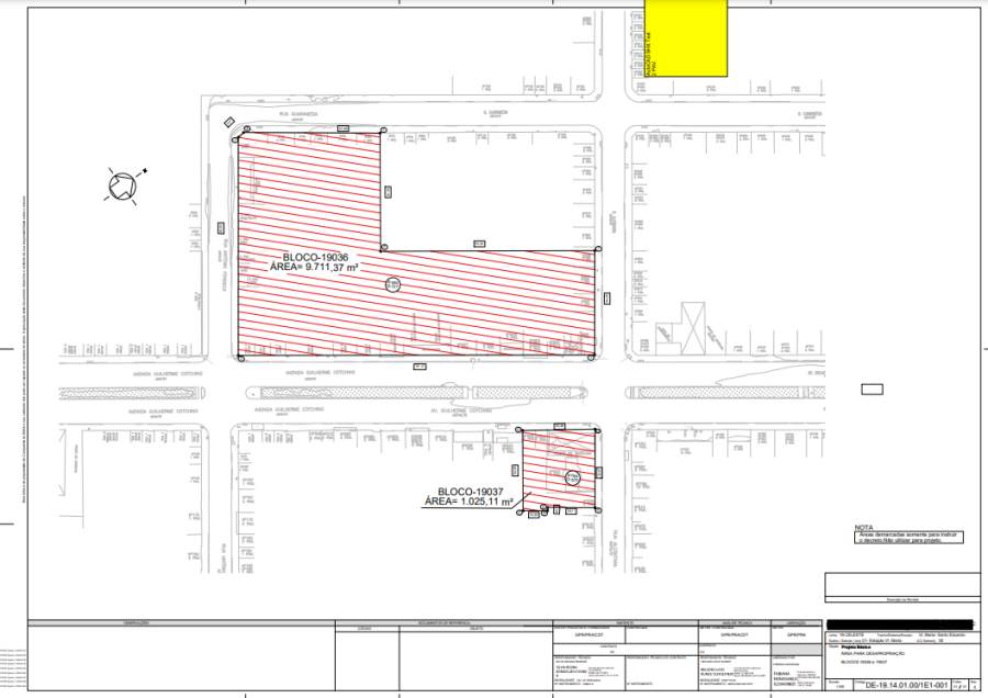
Avenida Guilherme Cotching, 563 - Estação Catumbi
Rua Marcos Arruda, 909 – (terreno da ANR Logística e Negócios Sustentáveis) - Estação Silva Teles
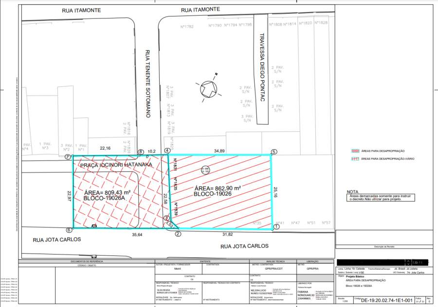
Rua Santa Rita, 70 - Estação Cerealista (antiga Pari)
Rua Mendes Caldeira, 223 – - Estação São Bento
Rua do Seminario, 87 - Estação Anhangabaú (antiga Praça da Bandeira / Anhangabaú)
Rua Santo Amaro, 43/45/47/53/61/67
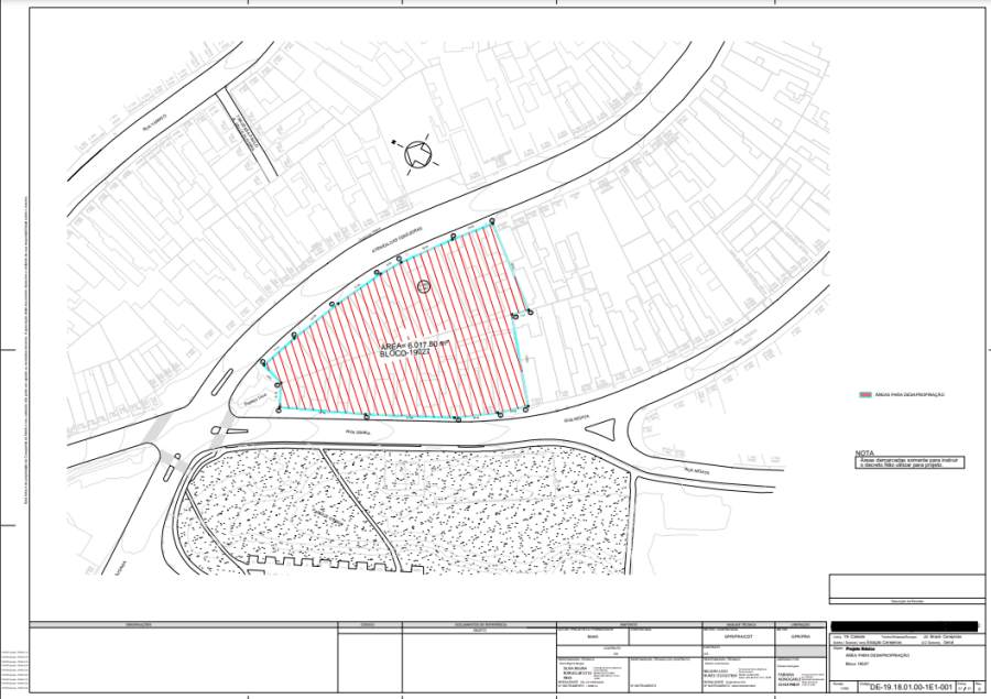
Veja as plantas dos locais:
Leia também a reportagem: “Licitação da Linha 19-Celeste é aberta: obra vai atender 630 mil passageiros por dia” – (22/09/2025) – clique aqui
<<Com apoio de informações/fonte: Agência SP / Governo de São Paulo – Cia. do Metropolitano de São Paulo >>
locais estações Linha 19-Celeste locais estações Linha 19-Celeste locais estações Linha 19-Celeste


























































