mini
da Redação DiárioZonaNorte
- Unitah Empreendimentos administrará por 30 anos os espaços de 13 terminais de ônibus integrados às linhas azul e vermelha do metrô.
- O projeto é assinado pelo arquiteto Jayme Lago Mestieri
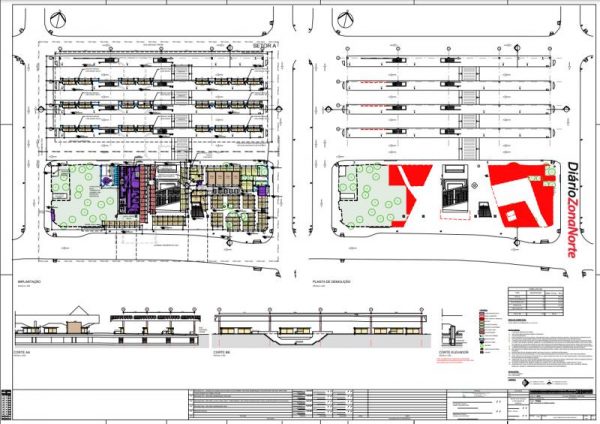
Em breve os terminais de ônibus das estações Metrô Santana e Metrô Parada Inglesa receberão unidades do Praça Unitah. O projeto tem a assinatura da Jayme Lago Mestieri Arquitetura – o mesmo escritório responsável pelos projetos do Trimais Places e da Nova Feira da Madrugada – e inspirado em um modelo de negócios existente em grandes centros urbanos no exterior, onde os empreendimentos ligados ao transporte público se transformaram em opções de lazer e acesso a produtos e serviços.
Concessão por 30 anos
Os dois terminais fazem parte de um lote com 13 terminais de ônibus integrados a estações do Metrô, onde circulam diariamente 1,5 milhões de pessoas, licitados pelo Governo do Estado de São Paulo em abril de 2020.
O vencedor do certame foi a Unitah Empreendimentos, consórcio capitaneado pelo Grupo Rezek, que administrará durante 30 anos os terminais das estações Ana Rosa, Armênia, Santana e Parada Inglesa (Linha 1- Azul); Artur Alvim, Patriarca/Norte, Vila Matilde/Norte, Penha/Norte, Carrão/ Norte, Carrão/Sul, Tatuapé/Norte, Tatuapé/Sul e Brás (Linha 3-Vermelha).
Destes 13 terminais, 7 são edificáveis e poderão receber no futuro shopping centers, academias de ginástica, hospitais, prédios comerciais e residenciais, entre outros. Na Linha Azul, apenas o Terminal Santana se enquadra nesta condição.
Metrô terá economia de R$ 22 milhões por ano
Pelo contrato, o Praça Unitah vai redefinir todo o layout e estrutura dos terminais. Segurança, zeladoria, limpeza e paisagismo também ficarão sob responsabilidade da Unitah Empreendimentos. O projeto deve proporcionar uma economia ao Metrô de São Paulo de R$ 22 milhões por ano, valor que seria gasto com a conservação e manutenção dos terminais.
O Metrô, além de já ter recebido R$ 11 milhões pela outorga, também vai passar a receber uma remuneração mensal de 8% sobre cada receita obtida pelo empreendimento. A partir do quinto ano de contrato, a Unitah pagará, mensalmente, 8% da receita ou R$ 855 mil, o valor que for maior.
Zona Norte
No Terminal de Santana serão 160 operações comerciais, distribuídas em 929,28 m² de ABL (área bruta locável ou área disponível para locação), onde devem circular diariamente 130 mil pessoas.
Já o Terminal da Parada Inglesa, 53 operações comerciais ocuparão 498,91 m² de ABL, com a estimativa de 33 mil pessoas por dia, deve receber . Ainda na Linha 1-Azul do Metrô, constam as Estações da Armênia e Ana Rosa – que tem previsão de entrega ao público no primeiro trimestre de 2021.

Um mix variado
Os boxes e quiosques já existentes nas áreas dos terminais, passarão por uma padronização e serão integrados a novas áreas comerciais maiores, com layout diferenciado e infraestrutura moderna, totalizando mais de 13.523 metros quadrados e 1.262 espaços disponíveis para locação imediata. Os números se referem aos 13 terminais.
A oferta do mix de lojas foi dividida em alimentação, varejo e serviços. A proposta é que haja os mais variados tipos de estabelecimentos, desde fastfoods, cafés, lojas de vestuário e eletrônicos, podendo incluir até mesmo serviços de costura, estúdios de tatuagem, minimercados, salão de cabeleireiros, entre outros.

Além da oferta variada de facilidades ao consumidor, nas etapas futuras do projeto, os terminais de ônibus vão abrigar lounges para uma melhor integração entre as pessoas, proporcionando conforto e bem-estar. Haverá acesso a wi-fi gratuito, banheiros e pisos remodelados, segurança privada e espaços revitalizados, que poderão abrigar exposições, atividades culturais e feiras livres.

Circulação de Usuários e Poluição
As dúvidas que precisam ser esclarecidas envolvem o espaço destinado a circulação de pedestres – principalmente no Terminal Santana – e qual o impacto da poluição e do barulho dos ônibus nas lojas e praças de alimentação.
Transformar um lugar de passagem para um lugar de convivência será o grande desafio do empreendimento. Se der certo, a tendência é que o entorno se beneficie.
Serviço
- Telefones: 11-2451.2054 e 11-9-4527.3837
- Site/Praça Unitah: clique aqui
- E-mails/lojista: [email protected]
- E-mail/cliente: [email protected]






















































